Offener Projektwettbewerb
Wohnen und Schule Luchswiesen
Zürich-Schwamendingen

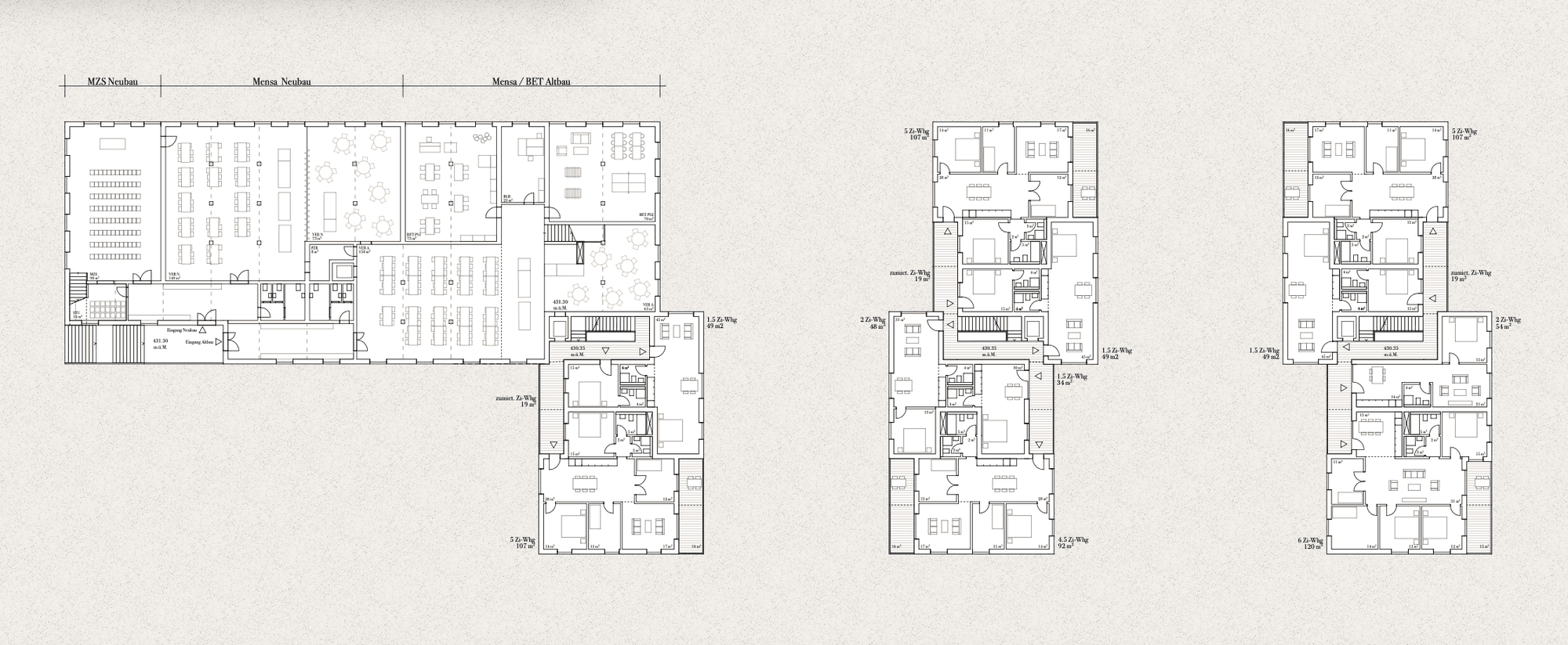
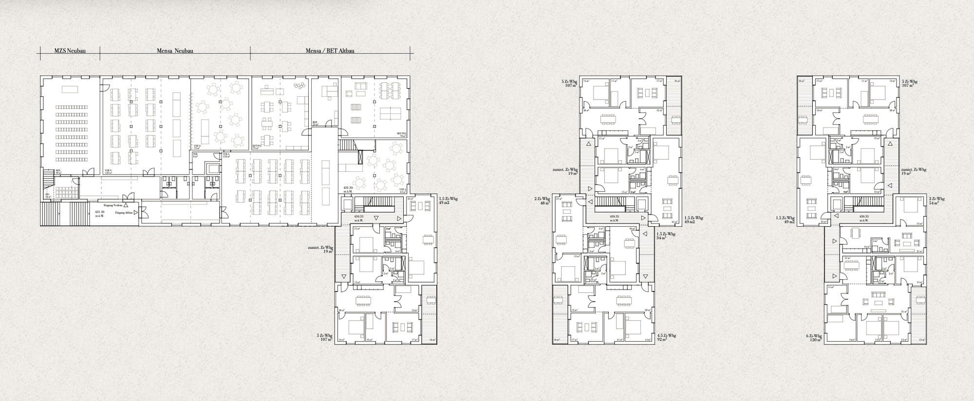
Die drei rechtwinkligen Wohngebäude passen sich der Nachbarschaft an und lassen eine Ost-West-Orientierung der Wohnungen zu. So bleibt der durchlässige Aussenraum als Quartier bestehen. Eine Ausnahme bildet das Schulgebäude, das sich mit dem Singsaal zur bestehenden Schule ausrichtet und den Schulhausplatz abschliesst. Wie bei allen öffentlichen Gebäude in der Umgebung, wird auch der neue Kindergarten in einem relativ niedrigen Gebäude eingerichtet. Die vier Aussenbereiche werden durch die Neubauten gefasst und sind bis in den Nachmittag durch die Sonne belichtet.
Die Wohnungen sind durch die klare und einfache Struktur, vielfältige Funktionalität und hohe Flexibilität für verschiedenste Personen geeignet. Alle haben zwei oder drei völlig verschiedene Sichtbezüge in die Umgebung. Auf lange Erschliessungskorridore in den Wohnungen wurde verzichtet, um mehr nutzbringende Fläche im Eingangs- und Wohnbereich zu bekommen.
Wie die Wohnungen ist auch die Schule einem klaren Raster unterstellt, das die Räume definiert. Im Erdgeschoss befinden sich die vier Kindergärten mit Gruppenzimmern sowie Aufenthalts- und Verpflegungsflächen. Der Eingang der Primarschule ist direkt vom Schulhausplatz zu erreichen. Über eine grosszügige Treppe verteilen sich die Schüler in die Räume. Der Mehrzwecksaal befindet sich gleich neben dem Schulhausplatz. Durch den überhöhten Raum bekommt er im Schulareal eine prägnante Stellung.











