Instandsetzung und Strangsanierung
Mehrfamilienhaus Urdorferstrasse
Schlieren

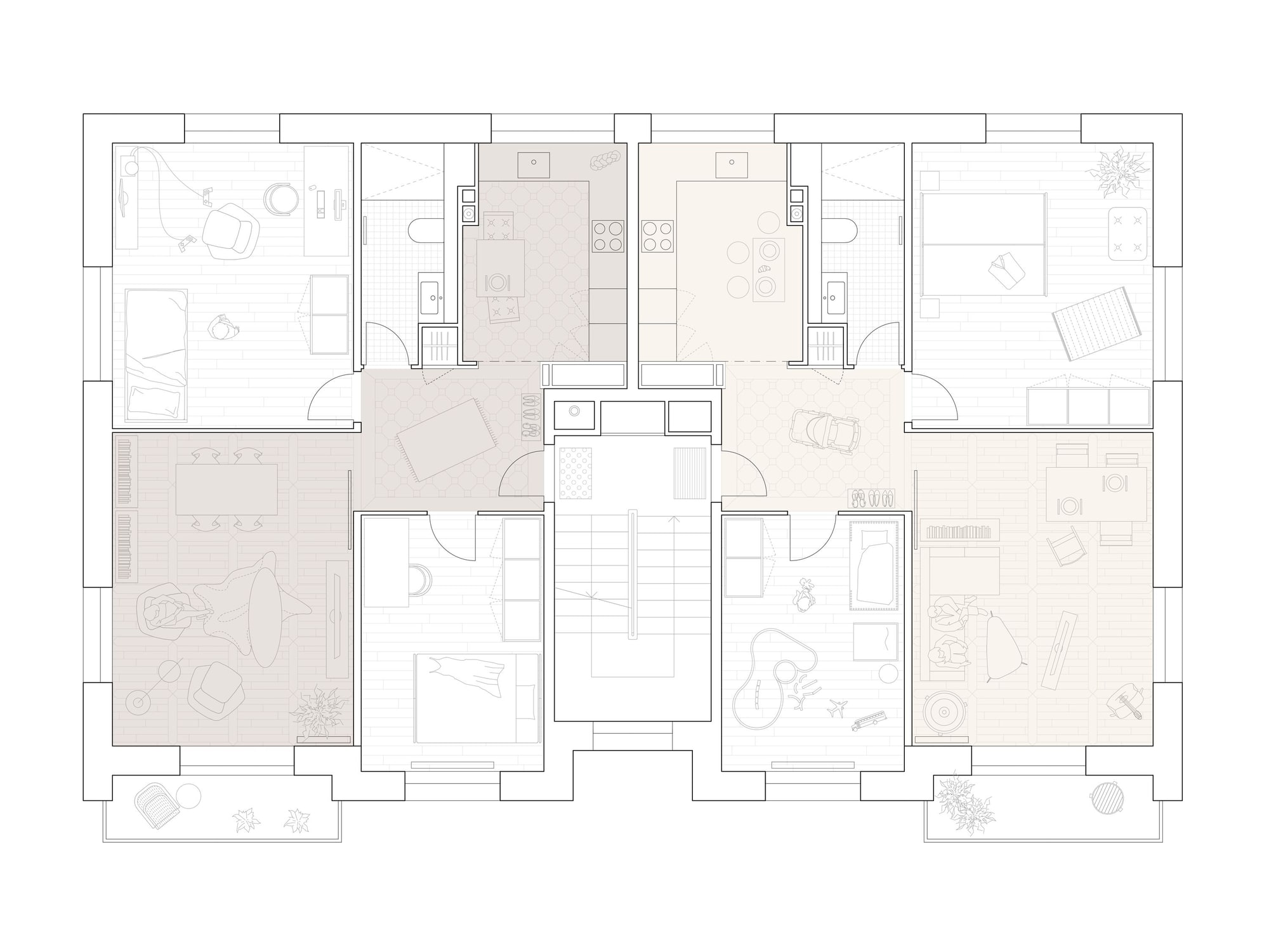
Das bestehende Mehrfamilienhaus mit 8 Mietwohnungen ist seit der Entstehungszeit um 1950 in privatem Familienbesitz. Die ursprüngliche Struktur und die 1990 angebrachte Fassadendämmung sind in gutem Zustand und werden erhalten.
Die umfassende Erneuerung umfasst die haustechnischen Installationen, die Küchen und Badezimmer sowie alle Oberflächen der Böden, Wände und Decken. Die innenräumlichen Qualitäten werden gestärkt, indem auf die Flügeltüren der Küchen und Wohnzimmer verzichtet wird. So entsteht ein Diagonalbezug von der Küche, über den neu natürlich belichteten Eingangsraum, bis zum Wohnzimmer. Die neu entstandene Grosszügigkeit wird von der Materialisierung der Bodenbeläge und der Farbigkeit der Oberflächen unterstützt.
Vergrösserte Fenster in den Giebelfassaden verschaffen beiden Dachgeschosswohnungen viel Tageslicht. Das Treppenhaus erhält nebst brandschutztechnischer Aufrüstung eine neue Beleuchtung und eine lebendige Farbigkeit an den Wänden sowie am bestehenden Metallgeländer. Die Gebäudehülle erhält einen neuen Farbton, die Balkone und Fenster mit Läden und Knickarmstoren einen verbesserten Sonnenschutz.























