Ersatzneubau
Mehrfamilienhaus Alte Winterthurerstrasse
Wallisellen

Der fünfgeschossige Ersatzneubau ist ein nach Südwesten ausgerichteter Körper, der mit einem Split-Level und zwei Rücksprüngen in der Fassadenflucht auf das leicht abfallende Gelände reagiert. Das mehrfach gestaffelte, abgestufte Volumen fügt sich gut in die feinkörnige Quartierstruktur ein und wirkt gut integriert.
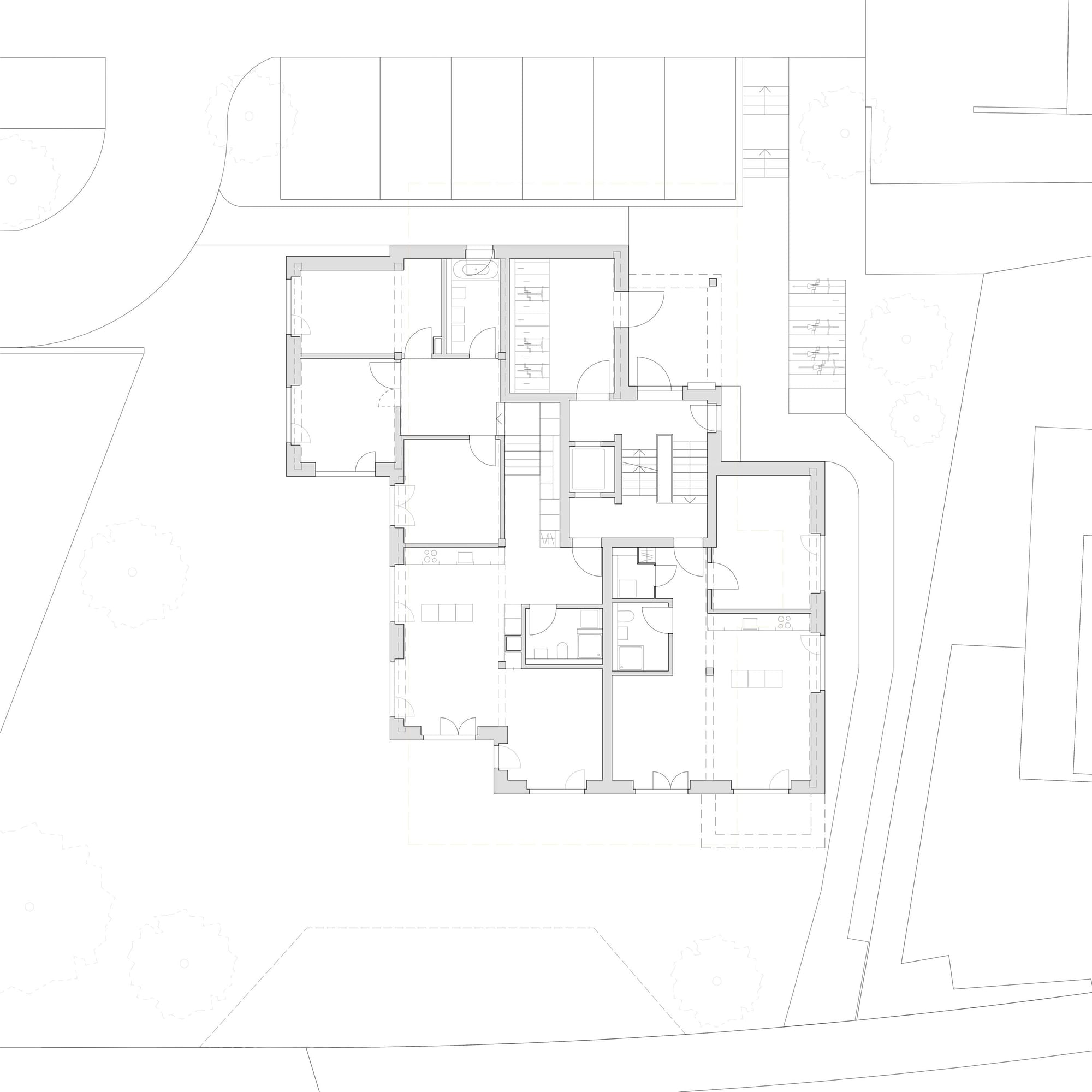
Die 12 Wohnungen werden zuerst als Mietwohnungen im mittleren Standard genutzt, später ist Stockwerkeigentum möglich. Ein Treppenhaus mit Tageslicht erschliesst in drei Regelgeschossen je drei und im Erdgeschoss zwei Wohnungen, je mit zwischen 2 ½- und 4 ½-Zimmern. Im Dachgeschoss ist auf beiden Ebenen eine grosszügige 4 ½-Zi-Wohnung vorgesehen. Die Grundrisse sind als Dreispänner zwei- bis dreiseitig orientiert und ermöglichen mit je einem grosszügigen Aussenraum gute Bezüge und Ausblicke ins Freie. Im Attika entstehen neben der Terrasse auch Grünbereiche.
Für eine nachhaltige und energiesparende Bauweise entsteht das Wohnhaus als Holz-Leichtbau. Auf dem obersten Dach ist eine Photovoltaikanlage angelegt. Die intelligente, ressourcenschonende Wahl aller Materialien – mit möglichst wenig grauer Energie – trägt zu einer guten CO2-Bilanz bei. Die Haustechnik ist niedrig technisiert konzipiert und hocheffizient ausgelegt. Alle gewählten Komponenten wurden über den gesamten Lebenszyklus bewertet.
Die Fassaden nehmen Bezug auf die städtebauliche Situation. Ein erdgeschosshoher und mäandrierender Sockel ist Basis für die darüberliegenden, versetzten Geschosse und verankert das Haus im üppigen Grün des Geländes. Eine sichtbare Struktur der Fassade gliedert die Fensteröffnungen sowie Geschosse und zeigt eine selbstverständliche Anwendung des Werkstoffs Holz. Die Gebäudehülle mit farbiger Brettschalung ist einfach, langlebig und leicht zu sanieren.












