Umbau und Aufstockung
Bürogebäude Kurvenstrasse
Zürich-Unterstrass

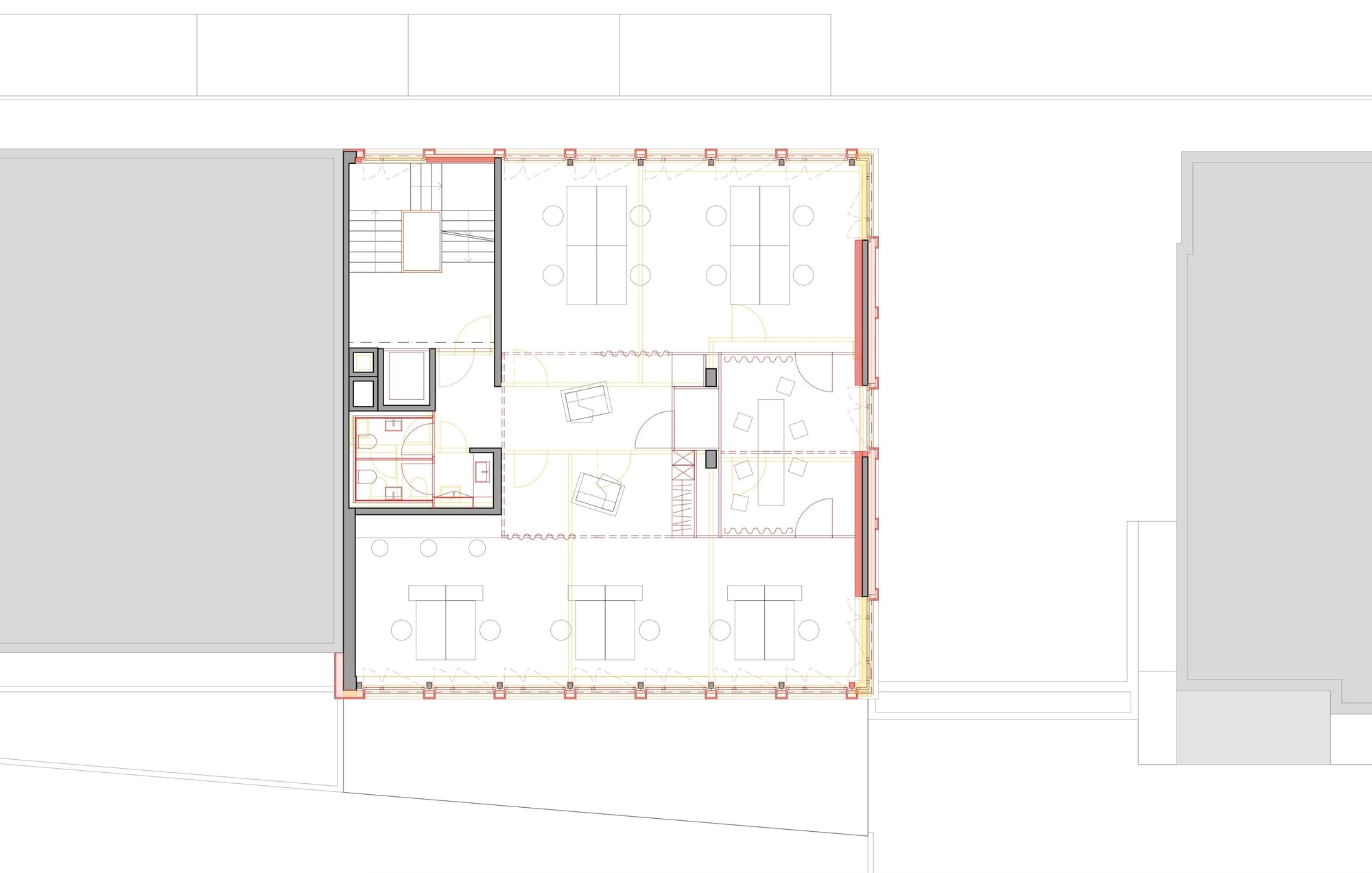
Das bestehende Geschäftshaus wurde 1964 zusammen mit dem nördlichen Nachbarshaus erstellt und weist eine für die Zeit typische Architektur auf. Es wird komplett energetisch saniert und mit einem Dachaufbau erweitert. Das neue Attikageschoss schliesst an das höhere Nachbargebäude an. Der bestehende Treppenaufgang wird in den Dachaufbau erweitert, das übrige Volumen des Attikageschosses tritt gegenüber dem Hauptbau angemessen zurück. Das Attikageschoss wird materiell und farblich vom Hauptbaukörper abgesetzt.
Anstelle des gebänderten Ausdrucks aus der Entstehungszeit prägen das Gebäude neu eine vorgehängte Steinfassade mit Lochfenstern. Zusätzliche Eckfenster werten die ursprünglich sehr geschlossene Stirn-Südfassade und die entsprechenden Innenräume deutlich auf.
Im Gebäudeinnern wird der sanitäre Kern und die Hauptverteilung der gesamten Haustechnik erneuert. Zudem erfolgt eine Anpassung an die aktuellen Anforderungen bezüglich Behindertenzugänglichkeit, Schallschutz und Brandschutz.















































